
現代人生活緊湊、居住空間縮小,和以前的生活型態有很大的不同,下廚的人無法只做「專心煮菜」這件事。餐廳已不限於用餐功能,更多取代於書房的作用,全家人聚在一起,小朋友寫作業、大人辦公或是一起上上網、聊聊天都有可能,因此餐、廚空間為生活重心,空間位置當然需要好好規劃。
曾有位客戶在規劃時特地要求在家中角落為他設計一間清靜小書房,讓他在家能專心辦公,交屋約莫半年後我們再次拜訪,客戶說他大部分的時間還是在餐桌上辦公,因為餐廳位於廚房及客廳的中間,無論他是想撥放音樂調控音響還是想喝水都比較方便。就是這個比較方便,所以餐、廚空間位置最好位於生活中的交叉點。

一早料理早餐時還要一邊叫家人起床,督促小孩刷牙洗臉換衣服,如果自己還要上班還要一邊煮一邊打理自己的儀容。晚上煮晚餐時,可能要盯著小孩的功課或同時洗衣服,因此每天進進出出廚房的次數會非常頻繁。
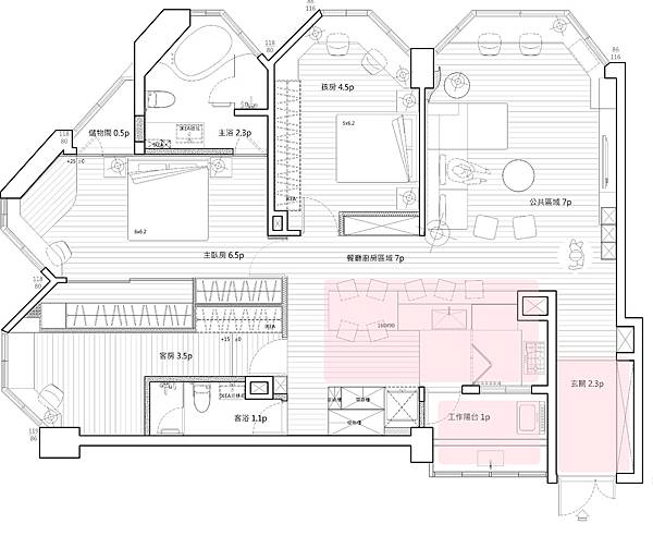
依上例平面圖,餐、廚空間位於孩房、主臥房門口,可以解決上述的問題,減短廚房與房間的距離即是縮短每天最頻繁的出入動線。


如果無法想像餐、廚空間動線,請設計師先畫3D圖,能對空間動線更有概念。


本案例更多詳請請見【舊屋翻新大搜查】化繁為簡 ─ 十畝之間 【舊屋翻新大搜查】化繁為簡的療癒舒壓空間
廚房熱炒區使用玻璃隔間,擋住油煙易於清理,也能隨時掌握家中狀態。也能讓關在廚房煮菜裡的人,不會有種一個人忙碌的氛圍。家人能看見廚房內的情況,隨時都能進去幫忙。

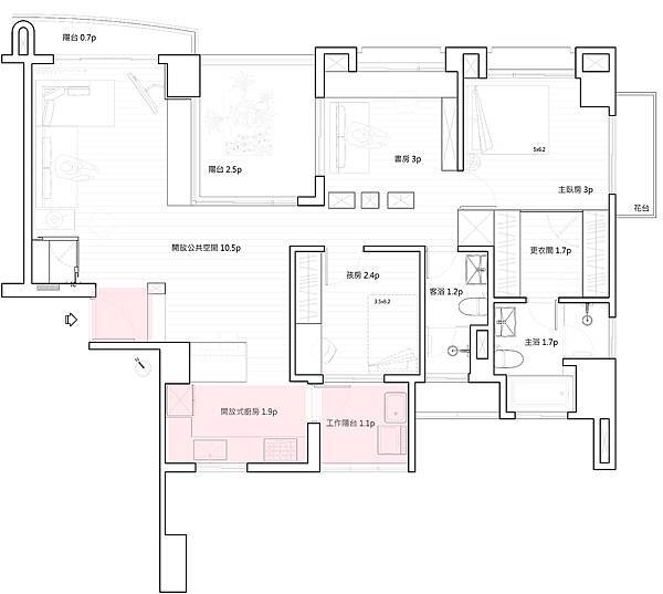
在做隔間規劃時應該先依照自己的生活習慣想像一下生活場景,如果是專職家管,可能每天需要買菜、做飯、送便當給小孩,那麼每天重復多次的動線也許是玄關↹廚房,因此縮短這兩者間的距離,顯得更為重要。

本案例更多詳請請見 【室內設計作品】Hygge Life (北歐風格設計)
上例平面圖及照片,買菜回來可立即進廚房,食材保鮮無須經過多餘的動線,做完飯,如需要馬上送便當也很方便。

本案例更多詳請請見 【舊屋翻新大搜查】挹注日光 徜徉蔚藍清新小公寓
相對於職業婦女因為做家事的時間被壓縮,因此洗衣工作陽台與廚房兩著間的位置最好能緊鄰再一起,煮飯炒菜的空檔能將衣物丟進洗衣機中,同時作業。
觀看本篇平面圖案例及現在的新成屋,無論是建商的建築師或室內設計師都會注意到這點。

本案例更多詳請請見 【室內設計作品】鋼琴詩人的空間饗宴
將餐、廚空間的動線規劃進生活核心動線中,讓廚房不只是媽媽的,餐桌不只是用餐的地方,活用餐、廚空間更能凝聚家人的向心力。
延伸閱讀:《小住宅格局規劃聖經》
留言列表
{{ article.title }}